Villa in private park of 35000 sq.m.

  • Deal Type
  • For Sell
  • Тype
  • Villa/Cottage
  • Area
  • 35000 m2
  • Floors
  • 2
  • Rooms
  • 6
ITALY – SARDINIA – Siurgus Donigala (Cagliari). Villa for sale in private park of 35000 sq.m.
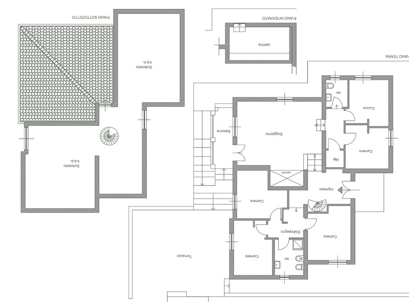
Independent villa for sale, immersed in the deep silence of nature, surrounded by a 35,000 sqm fenced park property  with high pines and characteristic Mediterranean vegetation, located about 50 km from Cagliari, 3 km from Siurgus Donigala  and 2 km from the suggestive lake Mulargia, in the south-east  of Sardinia,   The villa has a 126 sqm ground floor divided into four bedrooms, two bathrooms, one fully-equipped kitchen, one store-room and a spacious well-lit hall/dining room with a fireplace that works also as heating system (fireplace stove). In any case inside the villa, three air-conditioning units (cold / warm) are available and need to be used only very few days during the year.
 The villa has a large 90 sqm roof-space accessible by a spiral staircase, with  windows and a nice fireplace.
 The house has a 14 sqm basement cellar.
The villa is equipped outside with a typical Sardinian-style stone oven, next to a large 40 sqm terrace with a view of the park.
In front of the villa there is a nice 50 sqm wooden house with veranda.
The area surrounding the villa is equipped with:
•	Phreatic well with water tank
•	Artesian well
•	Solar thermal system
•	Electric gate entrance
Suitable for families or Associations looking for a place surrounded by nature, but not far from the city center. 
Ideal for those who love hiking, fishing, boating and relaxation. you can enjoy a wonderful view of all the lake and the surrounding hills by a promontory just 5 minutes' walk from the house through a path / trail .
The villa is presently owned by a no-profit Cultural Association, selling due to the transfer of their head-quarters.
NO REAL ESTATE AGENCY.  THE PRICE IS 'NEGOTIABLE. Any offer will be considered and evaluated carefully
google maps :  39°36'07.7"N 9°13'44.9"E
For more information, please call +39 3472400724 or send an e-mail to: csg.casacorona@gmail.com.
Photos and planimetry enclosed.
  • Location:
Country:Italy
State:Sardinia
City:Cagliari
Property Type:Villa/Cottage
Possible Bargaining:Yes
  • Characteristics
Rooms:6
Sleeping:4
Number of Kitchens:1
Number of toilets:2
Living Area (m2):208
Total Area (m2):35000
Land plot (m2):35000
  • Facilities
Floor covering:Parquet, Other
Type of Kitchen:Built-in kitchen
Bathroom:Shower
Other Facilities:Wine Vault
Equipment:Garden, Balcony/Terrace, Air conditioning, Fireplace
Heating:Wood heating, Solar panels
Furniture:Partial
Glass Frames:Wooden
Window View:Forest View, Garden view

290 000 €

341 844 $
26 095 665 ₽

On the map

Other properties of this seller